說在前面
本案例背景:一家三口,夫妻兩人有一女兒上小學,房子是新買的學區房。
他們對新家的期待是:希望能溫馨簡單一些,也要有高級的質感,同時還需要足夠的收納空間來保持全屋的整潔。所以綜合屋主的想法和我們的建議,最終將此次家裝風格敲定為現代美式。本次分享,我們也希望給喜歡的朋友帶來一些借鑒和啟發。
房屋信息:
戶型:四室兩廳
風格:現代美式
面積:135㎡
裝修花費:15萬
以下圖片來自麥豐設計
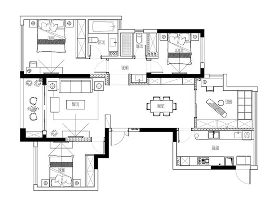
戶型圖
整個戶型圖較為方正、寬敞,各個區域布局相對合理,但還不能完全達到居住舒適性,所以需要一些相應的調整。
設計亮點:
1、廚房原本空間較為狹窄,光線欠佳。
調整方案:打通中空,擴大廚房使用面積,增強室外光線的照射度,同時將連接書房的通道堵死,營造更為通透方正的廚房空間
2、客廳與餐廳、次臥的開放性太強,邊界感有待完善,需要進行合理分配。
調整方案:沿著客廳原有的承重墻邊緣加設部分墻體,將客廳、餐廳、次臥的邊緣明確地劃分出來,以此保持動態與靜態區域互不干擾,增強使用感。
3、書房的單一使用過于浪費,所以在功能設計上考慮增加實用性。
調整方案:安裝定制的收納柜,將書房打造為具備家庭儲物間功能的區域,提升全屋的使用性能。
4、客衛空間較為緊湊,且直沖客餐廳,需要保持完善的功能和寬敞度,布局上作優化。
調整方案:新建墻體,將客衛的洗手臺外移安裝至過道,一方面可以阻擋衛生間直沖客餐廳的局面,鈍化突兀的視覺效果,另一方面便于自家人或客人到訪的正常使用。
客廳
入戶視覺缺乏過渡區域,所以拉平吊頂,地磚通鋪,盡量簡化硬裝,利用軟裝的細節來豐富空間。
客廳的主基調為淺色系,淺金色背景墻,灰色大理石紋地板,其實這樣的硬裝不僅簡約,還具有相當大的包容度,只要精心點綴上舒適的沙發,簡單的茶幾,再加上一點顏色鮮亮的抱枕、蓋毯等,就能變得很出彩。
深棕色原木電視柜、亮金屬花盆、藍黃撞色窗簾,為素雅的空間注入了溫度,將精致感融入到細節之中,仿佛秋天的奶茶、糖炒栗子一般,濃香馥郁,讓人回味無窮。
迎合屋主需求,在客廳外的陽臺放上簡單別致的桌椅,無論是看書、喝咖啡或是曬太陽都顯得足夠精致高雅。
餐廳
餐廳與客廳之間,不做明顯生硬的隔斷,而是以頂面吊頂和地面波導線結合的方式讓空間自然銜接,共享光線,合理的家居擺設,完美的行走動線,色彩的高度統一,融合在一起共同形成了一個和諧的空間。
原木餐桌與餐椅簡約大氣,玻璃與金屬材質的管狀拼接吊燈垂直照明,為屋主一家用餐帶來美妙溫馨的體驗。
精致的餐具和餐桌上的干花足以體現女主人是個注重生活情調的人。
廚房
廚房采用深淺互搭的配色原則,層次更加明朗,不驚艷,不夸張,但很干凈溫暖。寬敞的西式操作臺讓女主人盡情揮灑廚藝,頂柜和櫥柜的強大收納,將所有的平凡細碎盡收其中。
客衛洗手臺外移至過道,使用起來更加方便。絢麗的幾何形墻面花紋讓簡單的一角變成了充滿濃郁高雅氣質的風景。洗漱臺下方的雙開門收納柜,讓收納功能無處不在。
主臥
素雅干凈的淺色系,亮黃色的點綴,在自然光的照射下,帶來精神上的放松,這樣的空間氛圍,也讓整個睡眠空間變得安穩靜謐。
客臥
在次臥中,同樣運用極簡的硬裝來塑造空間的開闊感和包容度,球形金屬的壁燈和吊燈,清新典雅的淺藍色大床,再加上一抹亮眼的“黃”,緩緩訴說著歲月流金的故事。
兒童房
美式經典的布藝大床、床頭柜,小貓造型的鬧鐘、貓頭鷹臺燈,給人耳目一新的感覺,比較適合小女孩的心思,溫馨浪漫,充分滿足了屋主女兒的“公主夢”。
書房
書房主要也是屋主女兒使用,所以打造了粉白相間的甜美色調,充滿少女氣息。而在靠窗的位置設計了榻榻米供主人休閑,同時做了頂天立地柜,大大增加了空間的收納性,放上一把古箏,用悠揚的琴聲陶冶情操,修養生息也是很不錯的。一間屋子多重功能,簡直妙極了!
衛生間
衛生間將淋浴房改為了浴缸,灰色大理石紋瓷磚全包裹設計讓空間透亮整潔。洗漱臺加設了雙開門儲物柜,讓空間發揮最大效用。
說在后面
現代美式,通過對生活的積累,將有溫度的設計融入西式的文化理念,打造一個別致、摩登的居住空間。家居的裝飾訴說平凡的日常,卻又無處不在地彰顯屋主的精致與得體,讓人一眼看上去就心生愉悅。我們期待著和更多愛生活、愛家的人一起去探討更多的美宅理念。