這套房子是業主魏小姐的父母90年代購買的老式單元房,面積36㎡,閑置了幾年,出租了幾年,隨著現代都市住房環境的日益革新,這套老房子的居住環境已顯得落后破舊,難以滿足現代人的生活需求。此次想要對房屋進行改裝,自己和先生能住進來,有一個屬于他們的小家。她希望設計師能幫她打造一個全新的生活環境,展現年輕人的時尚生活。
讓我們先來看看這個老房子原始的模樣~
房屋所在的樓體老舊,樓道非常狹窄,施工難度高。
原始設施大多數已損毀破敗,90年代的裝混結構老房子,原有的管道、墻體不能大改。
廚房很是擁擠,陳舊的設施、不合理的動線、斑駁的墻體、零碎雜亂的各類用品,特別不方便清潔,殘留太多衛生死角,讓做飯的心情也很糟糕。
改造前次臥的環境擁擠雜亂,略帶陰暗,難免帶給居住者沉重、壓抑的心理感受。睡眠空間營造得也不是很舒適,一切都很將就、隨意。
衛生間隨意拼接的地磚十分難清潔,也不美觀。這個狹窄的空間內,承載了上廁所、洗漱、洗澡的功能,清潔用品也堆放在此處,令腳“無安放”之地。
業主改造需求:
1、改善擁擠的空間現狀,增加收納,放大空間,保證功能區齊全,能有個大大的臥室。
2、小戶型也不做簡約風,就是要有格調。
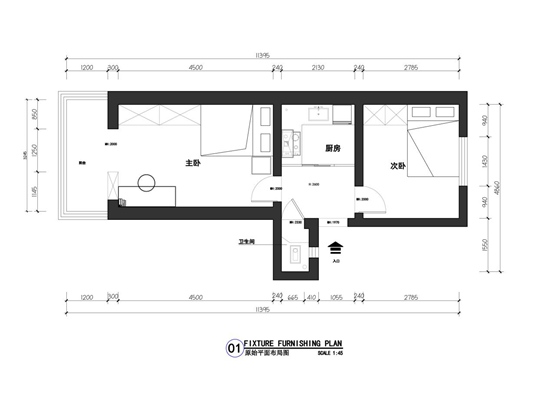
改造前戶型圖
設計師分析:
1、原始戶型動線不合理,主要功能區域,如廚房、衛生間等空間難以滿足物品收放功能,需要進行空間重組,做到功能區域劃分更合理。
2、常住2人,一個臥室可以滿足需求,將原本的次臥改裝為廚房+餐廳+客廳,讓小戶型的功能區更加齊全。也滿足現代年輕人快節奏的生活方式。
3、衛生間區域的面積有限,依托原始結構,將洗手臺、浴室和廁區分隔開,干凈衛生,更易打理,有效避免了原始戶型中所有功能、物品都集中在衛生間的狀況。
改造后居室效果圖
經過設計師的逆天改造,這個36㎡的小屋呈現出了讓人耳目一新的驚艷效果,黑白灰的色調展現新青年的都市時尚生活,暖黃的燈光營造溫馨浪漫的居室氛圍,洗手臺以黑色+鏡面營造大空間的既視感,輕奢又精致,太多的驚喜……
客廳
設計師用米色來讓空間顯亮,黑色+金色的儲物柜調性十足,展現空間的質感,很有摩登范兒。
居住最重要的是采光,尤其是小戶型。飄窗設計保證了采光,同時充分利用窗臺空間,使之可以成為一方小榻,也可以作為沙發使用,實在妙極。
值得一提的是,沙發背景墻上的燈是經過精心量算定制的,為的就是在預算之內將最合適的單品以最佳的狀態展現出來。這不僅僅是氛圍燈,還裝飾了單調的墻面,讓人在方寸之間感受藝術帶來的溫度。
廚房
一體化的客廳廚房與餐廳散露出和諧的美感。輕盈小巧的茶幾也可以當做餐桌使用,具備多功能。以灰色亮漆面櫥柜來拉升設計感,加上無主射燈的光線折射,浪漫有格調的用餐氛圍盈滿整個空間。
廚房雖是開放式,但大可不必擔心油煙的侵擾,內置的油煙過濾機實用且美觀,配上白色的操作臺,經典簡約。
主臥
臥室在設計上選擇了墨藍色的床頭軟包和窗簾,第一眼就被吸引住了。米白+棕的床品和魚骨拼木質地板散發著親切的暖意,不張揚、不刻意,空間的色彩映襯出內心的平靜。
床頭背景以飾面板做簡單的色彩對稱裝飾,在這樣質樸的背景下,擺設珍愛的相框,實現品味家居之余,呈現家的溫暖。黑色金屬床頭燈左右對稱,成為空間畫龍點睛的一筆,為理性質感添加感性色彩。
主臥的陽臺打造成了屋主盡情享受愜意閑適生活的私人空間。慵懶的沙發給人以全身心放松的舒適體驗。
不受固定邊界局限的設定,可自由調度和變動,蘊含空間使用的樂趣玩味。
陽臺的另一側擺放的是女屋主魏小姐的梳妝臺,簡約的化妝桌與空間完美契合,金屬邊腳展露輕奢和精致,簡約干練的空間柔和、沉穩、安靜,總在不經意間觸動人心。
洗手臺
洗手臺的設計很是驚艷,黑色地磚+鏡面設計,讓整個空間在燈光下熠熠生輝,一改往日的陰暗局促。精致的細節和充滿藝術氣息的陳設,營造出富有靈魂的空間境界。
大理石臺面+白瓷碗狀洗手盆素雅大氣,讓空氣中流淌著洗練的情調和怡然的氣息。
浴室
將生活形態和美學意識轉化成一種無聲卻可感知享受的設計語言。
小戶型里能有一個獨立的浴室,該是多么讓人欣慰的事情。
黑色、灰色不規則紋面的地磚拉寬了空間視覺感,讓這隔出來的浴室空間絲毫不顯得局促。
衛生間
馬桶間也單獨隔開,簡直不要太方便!
在門把手上刻字大概很出人意料吧,個性十足,讓這個小空間也略帶玩味。
結語
比起用手法去營造形式美,用創意予以人溫度和享受,往往更能詮釋設計的本質。本案在裝飾陳設上沒有太多手筆,更加注重空間的使用功能,將更多的設計創意用在生活動線、居住感受營造上,從心靈深處給予居住者最貼心的的暖意,在這老破舊的36㎡房屋中創造了太多令人驚訝的奇跡,很美,很不平凡~
--愛空間全國有1000多位設計師,幫你全屋設計。如有需求,可聯系設計顧問,1對1講解量房設計,溝通定制方案,切實做到設計的真實效果及實用性完美結合。